
(a) Does Petra have enough paint to cover the floor? You must show all your working.
(b) It is later found that 1 litre of paint actually covers 11 m² of floor. Does this affect your answer to part (a)? Give a reason for your answer.
Edexcel Summer 2024 H, Question 3.
Using area and perimeter in real-world contexts is a key part of GCSE maths. The question below uses an L-shaped floor and paint coverage to test compound area, units and practical reasoning. Here's a step-by-step solution.
Understanding the Problem
The question presents a practical scenario: Petra needs to paint a floor and we need to determine if she has enough paint. We're given:
A floor plan (an L-shaped or rectilinear shape)
Petra has 3 tins of paint, each containing 2.5 litres
Initially: 1 litre covers 10m²
- Later: Actually 1 litre covers 11m²
We need to answer two parts:
(a) Does she have enough paint initially?
(b) Does the new information change our answer?
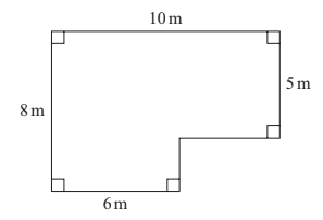
Visualising the Floor Plan
First, let's understand the shape. The description says it's an "upside down L shape" with these measurements:
Full top length: 10m
Full left length: 8m
Partial right (from top): 5m
- Partial bottom (from left): 6m
flowchart TD
A["Start with rectangle 10m × 8m"] --> B["Identify missing rectangle"]
B --> C["Calculate missing rectangle dimensions"]
C --> D["Subtract missing area from total"]
D --> E["Calculate total floor area"]
Step 1: Calculate the Floor Area
The key to solving this is recognising that the L-shape can be thought of as a large rectangle with a smaller rectangle removed.
Method 1: Rectangle subtraction
Imagine a full rectangle measuring 10m × 8m
The missing section (top-right) has dimensions:
Width: 10m - 6m = 4m (since the bottom part is 6m, the missing part must be 4m to make 10m total)
Height: 8m - 5m = 3m (since the right part is 5m, the missing part must be 3m to make 8m total)
Calculate:
Area of full rectangle = 10 × 8 = 80m²
Area of missing rectangle = 4 × 3 = 12m²
- Total floor area = 80 - 12 = 68m²
Method 2: Adding two rectangles
You could also split the L-shape into two rectangles:
Left rectangle: 6m × 8m = 48m²
- Top rectangle: 10m × (8m - 5m) = 10m × 3m = 30m²
But wait, we'd be double-counting the overlap! Actually, for an L-shape, we need to be careful. The correct split is:
Vertical rectangle: 6m × 5m = 30m²
Horizontal rectangle: 10m × (8m - 5m) = 10m × 3m = 30m²
- But these don't touch! Let me reconsider...
Actually, the most reliable method is the subtraction method above, which gives us 68m².
Step 2: Calculate Paint Required (Part a)
Now we know:
Floor area = 68m²
Paint coverage: 1 litre covers 10m²
- Paint needed = Area ÷ Coverage per litre = 68 ÷ 10 = 6.8 litres
Petra has:
- 3 tins × 2.5 litres each = 7.5 litres
Comparison:
Required: 6.8 litres
Available: 7.5 litres
- Difference: 7.5 - 6.8 = 0.7 litres spare
Answer to part (a): Yes, Petra does have enough paint as she has 7.5 litres and only needs 6.8 litres.
Step 3: Part (b) - The New Information
The question now tells us that actually 1 litre covers 11m², not 10m².
Recalculate with new coverage rate:
Paint needed = 68 ÷ 11 ≈ 6.18 litres (to 2 decimal places)
Petra still has 7.5 litres
- Now she has even more spare: 7.5 - 6.18 = 1.32 litres
Does this affect the answer to part (a)?
No, it doesn't affect the answer. In part (a) we concluded she had enough paint (with 0.7 litres to spare). With the new, better coverage rate, she needs even less paint (6.18 litres instead of 6.8 litres), so she definitely still has enough. The conclusion "yes, she has enough" remains valid.
Key Learning Points
Breaking down compound shapes: When faced with L-shapes or other rectilinear shapes, either:
Subtract a missing rectangle from a larger rectangle
- Divide into rectangles that don't overlap (but be careful!)
- Units and conversions: Always check your units. Here we had m², litres, and coverage rates (m² per litre).
"Does this affect your answer?" questions: These are common in GCSE exams. You need to:
Understand what your original answer was
Apply the new information
Determine if the conclusion changes
- Often the answer is "no" if the new information makes the situation even more favourable
- Showing your working: The question says "You must show all your working" - this is crucial for getting full marks even if your final answer is wrong.
Common Mistakes to Avoid
Misinterpreting the shape: Double-check which measurements go where. Drawing a quick sketch can help.
Forgetting to calculate total paint available: Don't stop at calculating needed paint - compare it to what's available.
Overcomplicating the area calculation: The subtraction method is usually simplest for L-shapes.
- Not answering part (b) properly: Remember to reference your part (a) answer and explain why the new information does or doesn't change it.
Practice This Type of Question
Try this similar problem: A room is 9m by 7m with a 3m by 2m alcove. If paint covers 12m² per litre and you have 5 litres, do you have enough? (Answer: Area = 69m², needed = 5.75 litres, so no, 5 litres isn't enough.)
- Remember: break the problem into steps, show clear working, and always check if your answer makes sense practically. Good luck with your GCSE maths revision!